HomeAid Receives Final Approvals for Micro Home Factory Site
HomeAid Northern California has been able to secure approvals for our micro home factory site in Alameda County to deliver permanent supportive housing to Bay Area projects. Micro homes are increasingly California cities’ shelter option of choice for new residential opportunities for our unhoused neighbors. State and local funding for the past decade has been shifting its focus from temporary shelter towards building permanent supportive housing: affordable, long-term living options that come with social services. Our HomeAid projects will partner with care providers to connect residents to much needed services and provide support while they heal and ultimately move into local affordable housing.
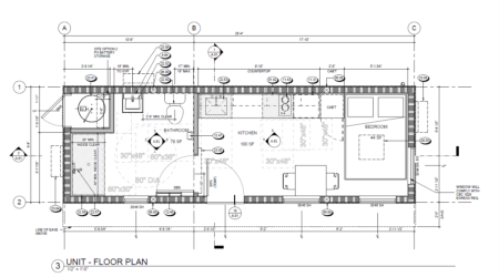
The first two micro home villages, are comprised of seven and five detached units with 258 square feet of living space, designed by the Dahlin Group, and including a private bathroom and kitchen. They will be built on property owned by the Presbytery, utilizing parking lot space to build new communities where healing can begin. The units are state certified manufactured homes built in partnership with Firm Foundation Community Housing and HomeAid’s Builder Captains; Pulte Group and Landsea Homes. We expect the unit construction to take six to eight weeks before delivering them onsite; making the pop-up factory a faster and more cost-efficient alternative to traditional housing development.
If you are interested in getting involved in a HomeAid project or want to learn more, please contact Crisand Giles for more information.
 
                         
            